Brisbane Living Laboratory

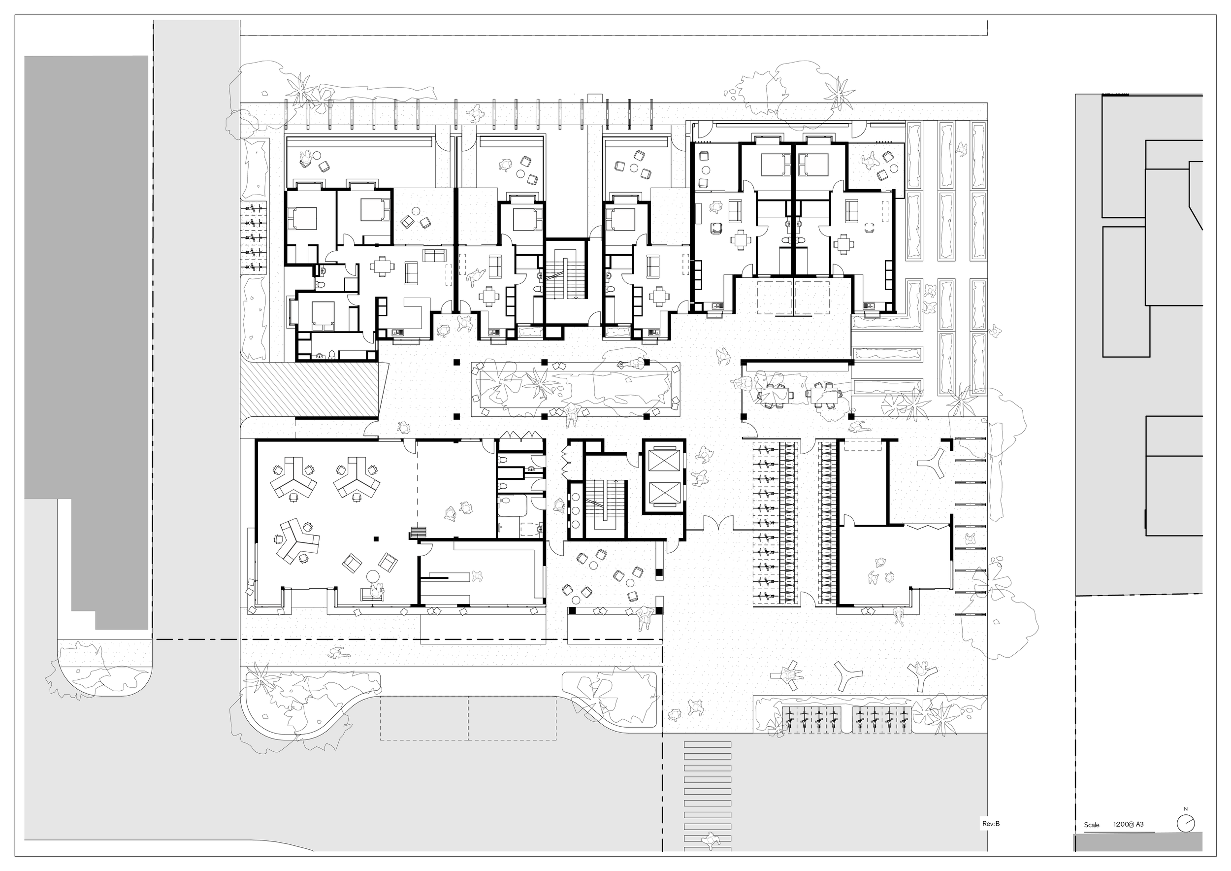
Brisbane Living Laboratory was an optimistic exploration into what social & affordable housing can look like in Brisbane. Best-practice design was implemented throughout. Longevity, environmental sustainability, accessibility and community building were the filters used against each design decision.

This project was done in collaboration with Julia Comer and Deval Shreyas. I worked with Julia and Deval to develop the floor plans, create the diagrams and strategies, and coordinate the numerous services.

Year
2020

Subject
ARCH7004

The Social Value

Social & Affordable Housing

See Full Project Here
Back to Portfolio